Sector Direction and Facing Direction

In Feng Shui we consider the sector compass direction and the facing compass direction, both are needed to master the flow of energy.

  • Facing direction is based on the facing direction of the front door or balcony door, the sitting position at the desk, the sleeping direction of the bed and so on. This governs energy received whilst facing that direction. It’s the energy coming at you or the object and it’s simply the direction you or the object such as a desk or door is looking at. However what you see when facing this direction is very important, ideally you want a good view to maximise benefits.

  • Sector direction is based on the location of the compass from centre point of the property. The centre point of the property is located and from there the property is divided into eight 30 degree segments, for example the western sector of the home is between 270 and 300 degrees. This governs the type of energy in that location of the property.

For example you could have your office in the eastern sector of the property but when you sit at your desk you are facing northeast, hence your desk faces northeast. This is a very important distinction in mastering the flow of energy available to you. Both will affect you and with awareness you can utilise this to your benefit.

Read on to learn how to demarcate sectors within your home.

How to demarcate sectors in your property and find centre point

You can approximately locate the centre of y0ur home by standing with your phone compass at centre point to locate a specific sector you want to work on. The best sector to start with is your Fu Wei sector or identity palace which can be used to enhance your personal development. Read here to find out more about your Fu Wei sector.

If you want a more accurate approach, you will need your floorplan, a ruler and a compass, a phone compass is acceptable:

Step 1: square off your floorplan, start with the ground floor, the same principle will work for each floor. If you have an irregular floorplan square it off leaving out spaces that are less than 50% of the width and length of the property. See example.

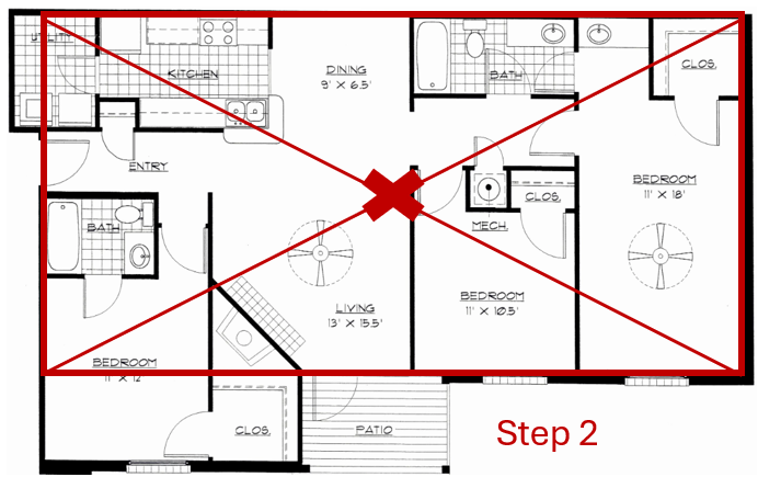
Step 2: mark centre point with diagonals drawn from each corner of the square / rectangle.

Step 3: stand at this centre point or as close as possible if it is inaccessible and use a compass and note where north is on your floorplan, then separate out each direction and segment your floorplan into 8 sections.

Tips: You can repeat these steps for each floor of your property. Your feng shui consultant will do this for you too so you can refer to the report received for accurate sector demarcations.